SOLDSTC
SOLDSTC
SOLDSTC
SOLDSTC
SOLDSTC
SOLDSTC
SOLDSTC
SOLDSTC
SOLDSTC
SOLDSTC
SOLDSTC
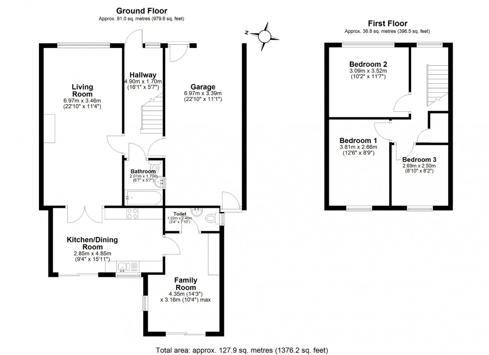
Floorplan for Windsor Road, Barton-Le-Clay, MK45 4LX
EPC Graph for Windsor Road, Barton-Le-Clay, MK45 4LX

3 Bedrooms Semi-Detached - Sold Subject to Contract Windsor Road, Barton-Le-Clay, MK45 4LX -Asking Price £425,000

3 1 2

Discover this extended three-bedroom semi-detached family home in Barton-Le-Clay, offering versatile living spaces, a refitted kitchen/dining room, and a generous garden.

Key Features

  • An extended and well presented semi-detached family home
  • Useful downstairs cloakroom
  • Bright and airy living room with a feature fireplace housing an open fire
  • Refitted kitchen/dining room with integrated appliances that has doors out to the rear garden
  • Additional downstairs family room
  • Downstairs bathroom
  • Three first floor bedrooms
  • Enclosed, mature rear garden with a patio area
  • Ample size driveway that leads to larger than average size garage with light and power
  • Approximately 0.7 miles to the nearest school
This extended and well presented three-bedroom semi-detached family home is ideally located in the popular and sought after residential area of Barton-Le-Clay. Offering versatile living space, the property benefits from a useful downstairs cloakroom and a refitted kitchen/dining room, making it ideal for modern day living. The bright and airy living room provides a welcoming atmosphere, complemented by an additional family room downstairs, ensuring ample space for all.

The ground floor accommodation comprises a welcoming entrance leading to a bright and airy living room, featuring a charming fireplace housing an open fire, perfect for cosy evenings. The heart of the home is the refitted kitchen/dining room, which boasts integrated appliances and convenient doors opening directly to the rear garden, creating a seamless indoor-outdoor flow. An additional downstairs family room offers flexible usage, whether as a play area, home office, or snug. Completing the ground floor is a practical downstairs bathroom and a useful cloakroom, enhancing the home's functionality. Upstairs, three well-proportioned first floor bedrooms provide comfortable retreats for the family.

Externally, the property features an enclosed, mature rear garden with a pleasant patio area, offering a lovely space for outdoor entertaining and relaxation. To the front, an ample size driveway provides off-road parking and leads to a larger than average size garage, which benefits from both light and power, providing excellent storage or workshop potential. The outdoor spaces are designed for enjoyment and practicality, complementing the interior living.

Barton-Le-Clay is a highly desirable village, offering a fantastic lifestyle for residents. The property is ideally located, approximately 0.7 miles to the nearest school, making the morning routine straightforward for families. The village provides a range of local amenities, including shops, pubs, and recreational facilities, all within easy reach. Excellent transport links are available, with convenient access to major road networks and nearby train stations, offering direct services to London. The surrounding countryside provides opportunities for walks, adding to the appeal of this sought-after location.

Recognised as one of the UK’s top 500 estate agents by the Best Estate Agent Guide (BEST) — placing us as one of the best estate agents in the UK and in the top 5% of all agents nationwide. This follows independent analysis of over 15,000 estate agents. Rankings are based on real data including sale prices achieved, speed of sale and customer service, helping sellers across Flitwick, Barton-le-Clay, Ampthill and all the surrounding villages get the best results when selling their home.

LOVE HOMES DISCLAIMER: These particulars are set out as a general outline in accordance with the Property Misdescriptions Act (1991) only for the guidance of intending purchasers or lessees, and do not constitute any part of an offer or contract. Details are given without any responsibility, and any intending purchasers, lessees or third parties should not rely on them as statements or representations of fact but must satisfy themselves by inspection or otherwise as to the correctness of each of them. We have not carried out a structural survey and the services, appliances and specific fittings have not been tested. All photographs, measurements, floor plans and distances referred to are given as a guide only and should not be relied upon for the purchase of carpets or any other fixtures or fittings. Gardens, roof terraces, balconies and communal gardens as well as tenure and lease details cannot have their accuracy guaranteed for intending purchasers. Lease details, service ground rent (where applicable) are given as a guide only and should be checked and confirmed by your solicitor prior to exchange of contracts. No person in the employment of Love Homes has any authority to make any representation or warranty whatever in relation to this property. Purchase prices, rents or other prices quoted are correct at the date of publication and, unless otherwise stated, are exclusive of VAT. Intending purchasers and lessees must satisfy themselves independently as to the incidence of VAT in respect of any transaction relating to this property. We retain the copyright in all advertising material used to market this Property. On occasion council tax banding may be reviewed once a property has been sold, the information provided is the current banding as advised by the vendor.


Location


Meet our Love Homes Family

Similar Properties